
この間取りについて
平屋を検討していると、
- 「平屋は80坪以上ないと建てられない」
- 「70坪台だと庭までは無理」
といった話を耳にすることがあります。
しかし実際の計画では、
敷地の広さだけで平屋の可否が決まるわけではありません。
今回ご紹介するのは、
敷地74坪・延床31.5坪の平屋3LDKで、
限られた条件の中でも
庭を暮らしの一部として成立させることを目的に設計した
L字型の間取りプランです。
この間取りの前提条件
- 敷地面積:74坪
- 延床面積:31.5坪
- 階数:平屋
- 間取り:3LDK
- 想定家族構成:夫婦+子ども2人
- 重視したテーマ:L字型で庭を囲む暮らし
敷地74坪は、
平屋・庭・駐車場を同時に成立させようとすると、
決して余裕があるとは言えない条件です。
その前提に立った上で、
配置と優先順位を整理しています。
間取り全体のコンセプト
このプランでは、
建物をコンパクトにまとめるのではなく、
**L字型に配置して「庭の居場所を先につくる」**考え方を採用しています。
平屋は建物が横に広がるため、
- 最後に余った場所が庭になる
- 細長く使いにくい庭になる
といった失敗が起きやすいからです。
先に
- 庭の形
- 視線の抜け
- どこから庭を見るか
を決め、
そこに沿って建物をL字に当てはめています。
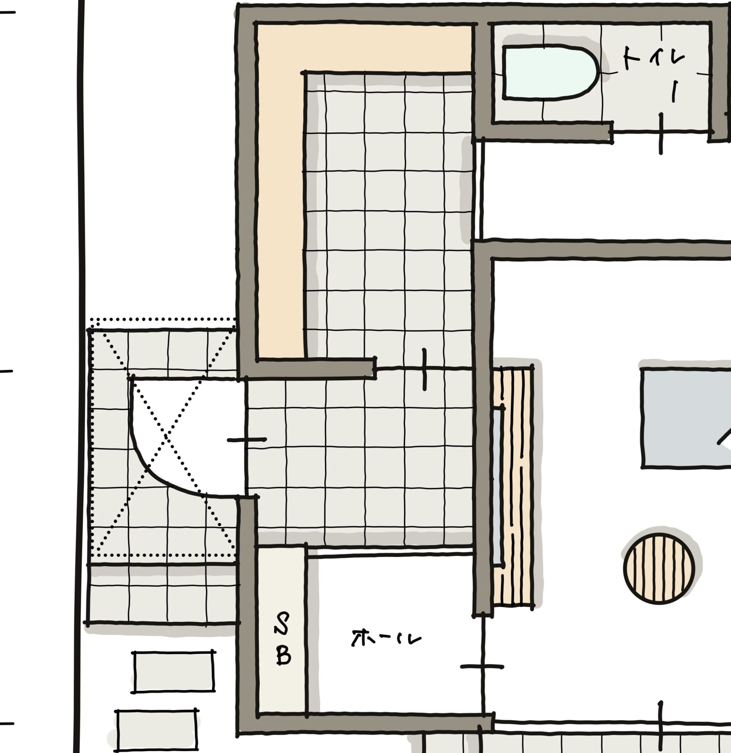
玄関|2way動線で家族と来客を分ける

玄関は、
ホールへ入る来客動線と
土間収納を経由する家族動線の2way動線としています。
玄関は散らかりやすく、
間取りで後悔しやすい場所のひとつですが、
- 家族は気兼ねなく出入りできる
- 来客時は生活感を抑えられる
という効果があります。
LDK(18.5帖)|庭に視線を集める平屋の中心

LDKは18.5帖。
広さを強調するよりも、
視線を庭に誘導する配置を重視しています。
道路側ではなく庭側に大きく開くことで、
- 外からの視線を気にせず過ごせる
- 室内と庭が一体に感じられる
という平屋らしい開放感をつくっています。
キッチン・ダイニング
キッチンとダイニングは横並び配置とし、
配膳・片付けの動線をシンプルにしています。
- 家事効率が良い
- ダイニングを多目的に使いやすい
一方で、
キッチン周りが見えやすいため、
整理整頓を前提とした計画です。
パントリー(2.5帖)|収納+作業のための空間

パントリーは、
単なる食品庫ではなく、
家事机を設けた作業スペースとして計画しています。
- 食品や日用品の管理
- 書類整理
- 家事の合間の作業
LDKに近く、
「使うための収納」として機能します。
洗面室|独立型で朝の混雑を防ぐ

洗面室は独立タイプとし、
2人が横並びで使える幅を確保しています。
トイレの手洗いも兼ねているため、
来客時も生活感が出にくい構成です。
脱衣室(2帖)|洗濯動線を最短に

脱衣室は2帖ですが、
洗濯→干す→WICに収納までが一直線につながります。
洗濯動線は、
一つでも無駄があると使いにくくなるため、
動作を途切れさせない配置を重視しています。
WIC(5帖)|家族で使う通過型収納
5帖のWICは、
洗濯動線と朝の身支度動線の両方に関わる位置に配置しています。
- 洗濯後はすぐ収納
- 朝はWICで着替えて各部屋へ
収納は「量」よりも
位置が使いやすさを左右します。
トイレ(2ヶ所)|平屋でも分散配置
トイレは2ヶ所設けています。
平屋でも、
家族の生活時間が重なる場合は
分散配置の方がストレスを減らせます。
主寝室(6帖)|寝るためだけの部屋

主寝室は6帖。
収納や書斎機能を詰め込まず、
**「寝ることに集中する部屋」**と割り切っています。
子ども部屋|将来を前提に完成させない
子ども部屋は2部屋。
成長に合わせて間仕切る前提です。
平屋では音の問題が出やすいため、
LDKとの距離感にも配慮しています。
書斎スペース|庭を眺める廊下デスク
廊下の一部に、
庭を眺められるデスクスペースを設けています。
個室にしないことで、
- 面積効率が良い
- 家族の気配を感じられる
在宅ワークや軽作業に向いた場所です。
「平屋は80坪以上ないと建てられない」という誤解
家づくりの相談で、
「平屋は80坪以上ないと無理ですよね?」
と聞かれることがあります。
結論から言うと、
それは半分正しくて、半分は誤解です。
確かに、
- 建物形状を単純にしたい
- 庭も駐車場も余裕を持ちたい
場合は、
80坪以上ある方が計画しやすいのは事実です。
ただし、
平屋が成立するかどうかは、
敷地面積ではなく「使い方」で決まります。
今回のように、
敷地74坪でも
優先順位を整理し、
建物配置を工夫すれば
平屋と庭を両立することは可能です。
この間取りの注意点
このプランは、
敷地74坪の中でも、
- 間口
- 方位
- 駐車台数
によって成立しやすさが変わります。
特に駐車台数が多い場合は、
L字の開き方を調整しないと
庭が中途半端になりやすいため注意が必要です。
この間取りが向いている人
- 敷地70坪台で平屋を検討している
- 庭を「眺めるだけ」でなく使いたい
- 家族の気配を感じながら暮らしたい
向いていない人
- 建物形状をできるだけシンプルにしたい
- コンパクトさを最優先したい
まとめ
敷地74坪は、
平屋を建てるには
決して余裕のある条件ではありません。
だからこそ、
「どう配置するか」「何を優先するか」で
暮らしやすさは大きく変わります。
この間取りの考え方が参考になった方は、
ご自身の条件に置き換えて考えてみてください。
同じ74坪でも、
敷地条件や暮らし方によって最適解は変わります。
条件整理が必要な場合は、
間取り検討のお手伝いができるかもしれません。
コメント