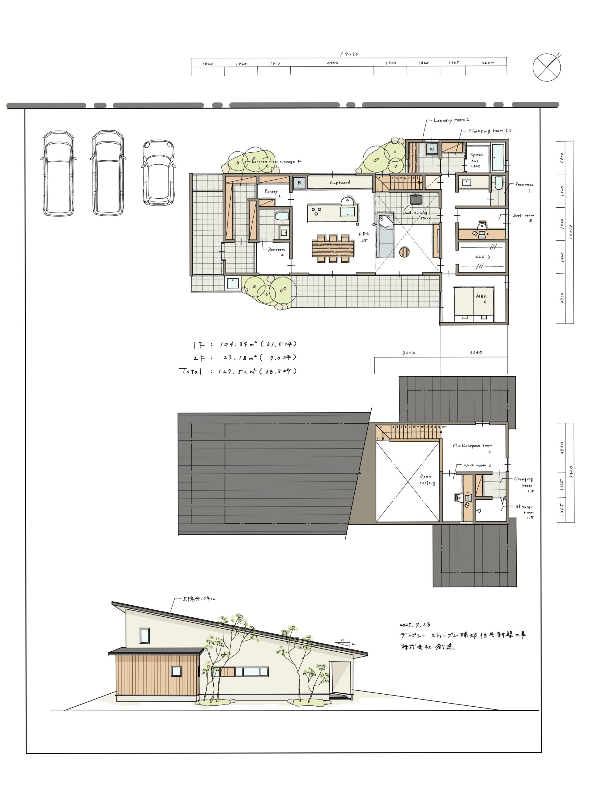
2階建て 2LDK 38.5坪|敷地300坪|北西道路 2026 5/09 2階建て 2026年2月13日2026年5月9日 2階建て 2LDK 35〜39坪 LDK20帖以上 WIC ウォークインクローゼット シャワールーム タイルデッキ トイレ2か所 パントリー ランドリールーム 北玄関 南玄関 吹き抜け 回遊動線 土間収納 書斎 東西玄関 独立洗面台 薪ストーブ よかったらシェアしてね! URLをコピーしました! URLをコピーしました! 平屋 3LDK 29.75坪|敷地 200坪|西道路 平屋 2LDK(3LDK) 34.5坪|敷地114坪|北道路|サウナのある住まい 関連記事 2階建て 3LDK 30.25坪|敷地:70坪|北道路|吹き抜けとキャットウォークのある住まい 2026年5月7日 2階建て 2LDK(3LDK) 35.93坪|敷地広大|北西道路|ひらける暮らし、こもれる居場所 2026年5月2日 コメント コメントする コメントをキャンセルコメント ※ 名前 ※ メール ※ サイト 次回のコメントで使用するためブラウザーに自分の名前、メールアドレス、サイトを保存する。
コメント